Índice
Reparación y Hundimiento inducido de la cimentación de una Edificación
En el año 2010 se decidió corregir este desnivel, por lo que
se procedió a una reparación de la cimentación que consistió
en ir retirando, de forma controlada, rebanadas del fuste de los
pilotes; posteriormente, con el auxilio de gatos hidráulicos sincronizados,se
bajó el edificio hasta que recuperó su verticalidad
y se volvió a fijar a los pilotes. El resultado de ese procedimiento
a corto plazo fue el esperado; desafortunadamente, solo
2 años después el edificio recuperó el desnivel, por lo que se
decidió realizar una nueva reparación de la cimentación: en esta
ocasión, que no solo corrigiera el desnivel,sino que además permitiera
al edificio seguir asentando para igualar el hundimiento
que presentan los otros edificios.
se procedió a una reparación de la cimentación que consistió
en ir retirando, de forma controlada, rebanadas del fuste de los
pilotes; posteriormente, con el auxilio de gatos hidráulicos sincronizados,se
bajó el edificio hasta que recuperó su verticalidad
y se volvió a fijar a los pilotes. El resultado de ese procedimiento
a corto plazo fue el esperado; desafortunadamente, solo
2 años después el edificio recuperó el desnivel, por lo que se
decidió realizar una nueva reparación de la cimentación: en esta
ocasión, que no solo corrigiera el desnivel,sino que además permitiera
al edificio seguir asentando para igualar el hundimiento
que presentan los otros edificios.
El procedimiento usado consistió en la combinación de
2 métodos: la modificación de la cimentación original agregando
una celda de hormigón armado alrededor de la zapata aislada,
con lo que es posible desligar los pilotes de fricción y convertirlos
a pilotes de control . Como este procedimiento no
puede garantizar la igualdad en los asentamientos, se complementó
con un cárcamo por debajo de la celda, con ventanas en
las paredes desde donde se puede extraer el material existente
debajo de la celda. Al extraer el material la celda se cuelga de
los pilotes, al tratar de cerrar los huecos. Aflojando el sistema de
control de los pilotes, la celda y a su vez el edificio logran bajar
hasta que el hueco generado se cierra. La combinación de estos
2 procedimientos asegura el descenso controlado del edificio.
En este trabajo se presentan: las hipótesis usadas para el
diseño de la nueva cimentación, la forma en que se integró
constructivamente con la existente, el proceso de conversión
de pilotes de fricción a pilotes de control y la etapa de extracción
de material por debajo de la nueva cimentación (subexcavación)
2 métodos: la modificación de la cimentación original agregando
una celda de hormigón armado alrededor de la zapata aislada,
con lo que es posible desligar los pilotes de fricción y convertirlos
a pilotes de control . Como este procedimiento no
puede garantizar la igualdad en los asentamientos, se complementó
con un cárcamo por debajo de la celda, con ventanas en
las paredes desde donde se puede extraer el material existente
debajo de la celda. Al extraer el material la celda se cuelga de
los pilotes, al tratar de cerrar los huecos. Aflojando el sistema de
control de los pilotes, la celda y a su vez el edificio logran bajar
hasta que el hueco generado se cierra. La combinación de estos
2 procedimientos asegura el descenso controlado del edificio.
En este trabajo se presentan: las hipótesis usadas para el
diseño de la nueva cimentación, la forma en que se integró
constructivamente con la existente, el proceso de conversión
de pilotes de fricción a pilotes de control y la etapa de extracción
de material por debajo de la nueva cimentación (subexcavación)
Antecedentes
- Descripción del edificio
Una Fábrica de Jabón La Corona S.A. de C.V. fue fundada en 1923 y reside desde 1956 en el Estado de México, México; su crecimiento ha obligado a la construcción de edificios muy cercanos entre si.
En una zona cercana al edificio estudiado se realizó un estudio de Down Hole , que tuvo como objetivo caracterizar el suelo en la zona y obtener el espectro de sitio. En este estudio se observó la siguiente estratificación: suelo arcillo-limoso, con una primera capa dura entre los 20 y 22 m, seguida de otras capas de arcilla, limo y arena hasta una segunda capa dura aproximadamente a 40 m. De acuerdo con el RCDF, la clasificación sísmica del suelo es de un suelo tipo IIIc, que corresponde a un suelo lacustre, integrado por potentes depósitos de arcilla altamente compresible, separados por capas arenosas con contenido diverso de limo o arcilla. Estas capas arenosas son de consistencia firme a muy dura y de espesores variables de centímetros a varios metros. Los depósitos lacustres suelen estar cubiertos superficialmente por suelos aluviales y rellenos artificiales; el espesor de este conjunto puede ser superior a 50 m.
Como se puede observar en las figura 4 los edificios y sus cimentaciones están muy cercanos entre sí, por así requerirlo el proceso de almacenaje y producción de la fábrica. Esta cercanía hace que las cimentaciones en la zona común se comporten de forma distinta a aquellas en los extremos contrarios de los edificios. Esta incompatibilidad se refleja sobre todo en el asentamiento relativo, dado que Pasillo Central ha quedado «alto» al tener una cimentación profunda que no responde al hundimiento regional, mientras que los edificios , sí se ven afectados por este fenómeno.
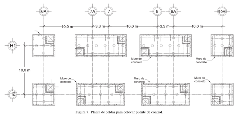
La zona a recimentar forma parte de la nave principal y está limitada por los ejes 6 A y 10A en una dirección y por los ejes H1 y H2 en el otro sentido (fig. 5). En su parte superior es un edifico de estructura metálica que soporta principalmente 12 silos, equipos especiales y depósitos necesarios en su operación.
La cimentación original del edificio estaba basada en zapatas aisladas que transmiten la carga a un grupo de 58 pilotes de fricción (fig. 6) y estos a su vez al suelo circundante.
Los pilotes son de sección circular, de 0,50 y 0,60 m de diámetro, en tramos de 1 m de altura hasta 18 m de longitud y una capacidad de carga que varía entre 500 y 600 kN. Este sistema de cimentación ha soportado el edificio desde 1985, a˜ no de su construcción. A diferencia de Pasillo Central, los edificios 1 y 2, al ser más ligeros, fueron cimentados usando solamente zapatas aisladas, o pilotes de fricción muy cortos, lo que provocó mayor asentamiento de los edificios adyacentes, afectando el proceso de producción. Aunado a la diferencia en el tipo de cimentación se encontró que las cimentaciones fueron colocadas de forma que se superponen (a diferentes profundidades), e incluso se dio el caso de que se ligaron, ocasionando que la parte cercana de los edificios se asentara al mismo ritmo que los extremos opuestos de los edificios, provocando inclinación en estos.
- Recimentacion
Como se ha mencionado, la primera intervención logró la disminución en los desniveles del edificio y los edificios contiguos, sin embargo, 2 años después este desnivel se había recuperado.
Se buscó la causa del rápido aumento del desnivel, y se atribuyó a que la capacidad de la cimentación excedía la demanda de carga, y que al ser pilotes largos (18 m) estos presentaban un comportamiento similar a pilotes de punta, que impiden el hundimiento del edificio, provocando la emersión aparente con respecto al nivel de piso. Dada la rapidez con la que se perdieron los beneficios obtenidos por la primera recimentación, se descartó repetir el procedimiento, iniciando la búsqueda de un procedimiento que modificara el comportamiento de la cimentación existente haciendo que su eficacia se alargara.
Las condiciones que debía cumplir el procedimiento se pue-
den resumir en 2:
- Disminución rápida del desnivel entre Pasillo Central y los edificios 1 y 2.
- La nueva cimentación debe permitir a Pasillo Central seguir al hundimiento regional.
El procedimiento elegido consistió en la combinación de 2 técnicas: la extracción de material para disminuir los desniveles de manera rápida (subexcavación) y el manejo de pilotes de control para controlar los hundimientos regionales.
Además, se planteó la creación de celdas de extracción del material, con lo que es posible repetir el proceso durante el resto de la vida útil del edificio sin volver a realizar grandes trabajos de albañilería.
Un resumen de fechas de inicio de las actividades se muestra en la tabla1. Se propuso desligar los pilotes de la zapata y convertirlos en pilotes de control; para ello fue necesario soportar la zapata en
una celda de hormigón que a su vez transmitiera la carga a los pilotes entre 3 y 4 m más abajo del nivel de desplante de la zapata original. Una vez terminada la celda se procedía a desligar los pilotes uno a uno, y conectando a la losa fondo de la celda, a través del puente de reacción y las anclas.
La zapata y trabes existentes se utilizaron como losa tapa del cajón; para garantizar la correcta transmisión se reforzó la zapata con trabes de hormigón y una losa nueva; los muros del cajón tienen un espesor de 0,30 m, la losa fondo se propuso de un espesor constante de 0,50 m con contratrabes embebidas para no tener salientes que interfirieran con la subexcavación. La carga a los pilotes se transmite a través de un «puente de reacción» que se ancla a la losa y presiona al pilote. La altura varía de acuerdo con la zapata, siendo la mayor de 4,10 m (fig.).
El sistema de control del pilote se formó con una viga de acero formada por 2 perfiles tipo C, 2 espárragos que se unen a la losa a través de placas de acero, y como material deformable se usó una placa de neopreno vulcanizada como se muestra en la figura 8.
Articulo de Investigacion Realizado por:
Bernardo Orozco Rivas y Mabel Mendoza Pérez
Puedes verlo Completo en :






